SXOINOUSA LUXURY SUITES
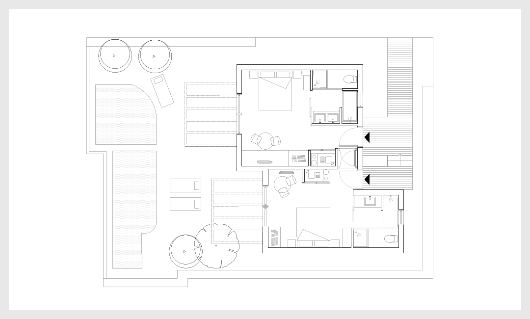
Το οικόπεδο εμβαδού 4000 μ² βρίσκεται στην Χώρα της Σχοινούσας, σε υψόμετρο 153 μ (από τη στάθμη της θάλασσας) και με θέα το λιμάνι. Στο έργο κατασκευάστηκαν 5 ανεξάρτητα κτήρια (7 αυτοεξυπηρετούμενα ενοικιαζόμενα διαμερίσματα). Τα κτίρια έχουν το παραδοσιακό κυκλαδίτικο στυλ, λιτές γραμμές στις όψεις με πολυτελές εσωτερικό και περιβάλλοντα χώρο. Η θέση των κτηρίων είναι τέτοια ώστε να σχηματίζεται ένας μικρός οικισμός ενώ από μακριά δίνεται η αίσθηση ενός ενιαίου πολεοδομικού συνόλου, μέρος της χώρας της Σχοινούσας.
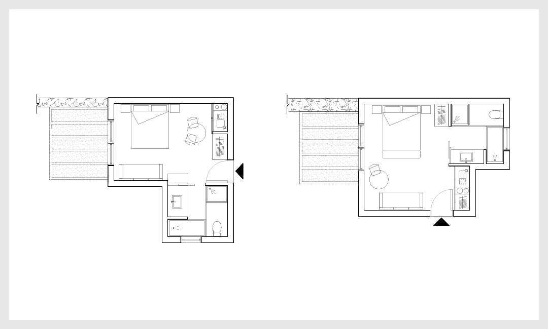
Πραγματοποιούνται τρεις τυπολογίες κτηρίων που εξυπηρετούν διαφορετικές ανάγκες για τους χρήστες. Τα σπίτια είναι υπόλευκα με λιτά χαρακτηριστικά, μονώροφα, με δυτικό προσανατολισμό και κατανέμονται στο χώρο έτσι ώστε να δίνεται η εντύπωση ενός ενιαίου οικιστικού συνόλου χωρίς να αλλοιωθεί η οικιστική μορφολογία του νησιού. Επιπρόσθετα, τα κτίρια αποκτούν μια ενιαία οντότητα μέσω της ενοποίησης των αυλών, διατηρείται έτσι η έννοια του ενιαίου πολεοδομικά συγκροτήματος παρά την διάσπαση των όγκων.
Το εσωτερικό των σπιτιών παρουσιάζει ιδιαίτερο ενδιαφέρον. Κάθε ένα από αυτά συνδυάζει την λειτουργικότητα και την αισθητική με ένα πολυτελές λεξιλόγιο. Τα έπιπλα, οι συσκευές, τα υφάσματα που έχουν επιλεγεί υπογραμμίζουν αυτά τα στοιχεία ενώ προβλέπονται υδάτινοι χώροι αναψυχής για κάθε διαμέρισμα (7 πισίνες μικρού μεγέθους). Η τοποθέτηση του συγκροτήματος από άποψη προσανατολισμού είναι ορθή μιας και έχει αφεθεί ακάλυπτος χώρος για τον επαρκή ηλιασμό και αερισμό των κυρίων χώρων του κτιρίου. Τα μεγάλα ανοίγματα βρίσκονται στο Δυτικό μέρος, όπου είναι και η θέα του λιμανιού της Σχοινούσας.






